Work begins on new homes near the north Norfolk coast
Aspen Build Operations Director James Betts, left, and senior site manager Gary Rush at the Bacton site. Credit Flagship.
Work has started on a new 47-home development a stone’s throw from the north Norfolk coast.
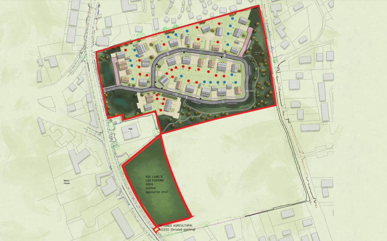
The Flagship Homes project, called St Andrew’s Meadow, is on a 2.8ha site between a village hall and a fish and chip shop in Coast Road, Bacton.
Tony Tann, Flagship Homes’ managing director, said he was pleased to see more much-needed affordable homes being built in north Norfolk.

Aspen Build Operations Director James Betts, left, and Flagship Homes managing director Tony Tann at St Andrew’s Meadow, Bacton. Credit Flagship.
Mr Tann said: “We’ve recently finished 12 new homes in Warham, and we’re also building in Sheringham and Walcott. These are all rural locations where affordable housing is so important to have.”
The project includes 28 homes for affordable rent, which will be allocated to families on the local housing register. They will be let at around 80% of market rate and be managed by housing association Victory Homes, which, alongside Flagship Homes, is part of Bromford Flagship.
The other 19 will be for shared ownership, a hybrid of buying and renting which allows people to get onto the housing ladder with a low deposit.
The low-carbon houses will feature air-source heat pumps and solar panels. They will be built using Modern Methods of Construction (MMC), meaning components such as walls and roofs will be prepared in a factory before assembly on site.

Representatives from Flagship Homes, Aspen Build and North Norfolk District Council at the St Andrew’s Meadow site in Bacton, north Norfolk. Credit Flagship.
Ipswich-based Aspen Build has been appointed principal contractor on the project.
As well as the homes, the project also includes a 0.6ha site to the south of the village hall. This land will be gifted to the local parish council for use as a village open space and car park. As well as the beach, there is a primary school, shops, cafés and restaurants nearby. There are bus connections to Mundesley, North Walsham and beyond.
North Norfolk District Council (NNDC) gave the project the green light last year. It is being partially funded by Homes England – the government’s housing and regeneration agency.

A site map of St Andrew’s Meadow, Bacton. Credit Flagship.
Councillor Wendy Fredericks, NNDC’s deputy leader and housing portfolio holder, said she was delighted to work in partnership with Flagship Homes.
She said: “This is a wonderful opportunity for local people to have a home where they have connections to school and work. I can’t wait to see the first household move in and make their home in Bacton.”
Flagship Homes is a development subsidiary of Bromford Flagship, following the merger of the social housing providers, Bromford and Flagship, in February.
